Bay of Plenty Property for sale

powered by Open2view.com

26 Tawavale Street

Bay of Plenty
3
2
N/A
150sqm
804sqm
26 Tawavale Street Bay of Plenty
Auction
Wednesday 27th May - 12:00PM
proudly marketed by
Rotorua, Success Realty MREINZ
Privately positioned, sun-soaked family living
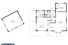
Tucked quietly beyond the street frontage, this well-presented home unfolds as a private sanctuary on a generous 804sqm (more or less) section, where space, comfort and connection to the outdoors come together with ease. Established grounds frame the setting beautifully, with a wide driveway leading to a standalone double garage and ample off-street parking, reinforcing both practicality and a sense of arrival. Inside, natural light pours through expansive windows and sliders, illuminating a welcoming living zone anchored by a character-filled brick feature wall and compliant log burner. This is a space made for relaxed evenings and cosy winters, while the seamless flow outdoors invites sun-soaked afternoons and effortless entertaining. The wraparound patio and courtyard create multiple zones to gather, dine, and unwind, all set against a backdrop of easy-care lawns and landscaped edges. The heart of the home is a fresh, modern kitchen, thoughtfully designed with generous bench space and a central island that encourages connection. Positioned alongside the dining area, it forms a social hub where everyday living and entertaining blend naturally, with direct access outdoors enhancing the sense of openness and flow. A flexible layout ensures versatility for growing families or guests, with a double bedroom and bathroom conveniently located on the ground floor. Upstairs, two oversized bedrooms sit beneath striking pitched timber ceilings, adding warmth and architectural interest while creating light-filled retreats. A second bathroom services this level, completing a well-balanced and functional design. Throughout the home, a blend of textures - from warm timber accents to solid brick - adds depth and character, while practical features such as heating and ample storage support comfortable day-to-day living. Set within an established neighbourhood with parks and the stadium nearby, this property delivers a harmonious balance of privacy, space, and lifestyle - an inviting place to settle in and feel at home.
Question
Location
Upload by Deanna Onan
Rotorua